Les blogs
du village
Le monde selon RAY ZAB

Le monde selon RAY ZAB

La vraie vie des poupées chez Ray Zab

Les dernières photos

Warning: Division by zero in /home/certifer/www/blog/fonctions.php on line 226


La robe pour shooting maternité


fleur bleue


Surprise du matin


Tout mais pas


Bonnet rigolo
S'inscrire à la newsletter du village

Statistiques
Nombre de visites : 13 121 781
Nombre de commentaires : 8 241
Nombre d'articles : 6 012
Dernière màj le 09/09/2024
Blog créé le 14/11/2009

S'inscrire à la newsletter du blog

S'inscrire au fil RSS

Thème artiste peintre

 28/12/2016

Alors voilà ce à quoi j'ai travaillé hier avec mon mari.

Faire une blouse de peintre

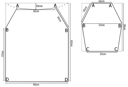
J'ai donc trouvé ce patron sur internet



Je voulais faire ce genre de blouse

Mais dans l'urgence j'ai agrandi le patron que j'ai trouvé à la taille 7 ans que j'ai imprimé à la maison, mon mari a découpé le patron, collés les morcaux

Mais hélas pas de tissu correspondant à notre recherche en ville

Alors nous avons fouillé dans mes vêtements que je n'ai met plus depuis des années et nous avons trouvé une liquette blanche

Nous l'avons retaillé à la taille.

J'ai tout recousu, fait une broderie à la machine mais .. et oui c'était blanc et mon mari voulait que ce soit un peu couleur toile de jute

Alors je lui ai fait faire deux grands cafés tres fort, et nous avons trempé la dite chemise dedans, elle sèche ce matin, coup de repassage et elle est prete

 



et là j'essaie de faire ce genre chapeau au crochet ... on va voir ce que donne



 

J'invite un ami à créer son blog
 
Votre prénom :
Prénom de votre ami :
E-mail de votre ami :
 
Message :